
1、弧墙定出圆心,用φ50钢管定位于圆心上并且垂直上升;
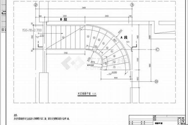
2、搭设梯井、弧墙内外钢管脚手架,并通过弧墙予留洞将内外脚手架连成整体; 3、钢管脚手架抄平,定出弧墙外模板下口水平线,弧墙外模板定位安装、拼缝,并与外脚手加固; 4、弧墙立筋、水平筋、暗梁筋绑扎,暗梁纵筋分为二个施工段,钢筋接头采用搭接绑扎,弧墙水平筋、纵筋先绑扎外立面,再绑扎暗梁,待暗梁绑扎完成,再绑扎内立面,且内立面钢筋绑扎时预留出楼板钢筋绑扎工作面弧形楼梯安装方法弧形楼梯怎么施工。弧墙立筋钢筋绑扎采用绑扎搭接,搭接区域留置于每层楼板顶面(按00G101第34页),弧墙钢筋绑扎完成后,按弧墙宽度绑扎250宽弧墙模板定位钢筋并焊接固定; 5、安装弧形窗模板,并与弧墙外模拼缝密实并贴上海绵条以防砼漏浆后好敲掉多余砼; 6、楼板下弧墙内模定位、安装,并用穿墙螺栓套PVC管结合弧形钢管或φ25钢筋将内外弧墙模板固定; 7、楼梯模板安装:先安装梯板底模,在内脚手架上做好标高控制线,严格控制梯挑底板端部标高及呈旋转上升走势; 8、按照楼板外圆弧长根据悬挑钢筋间距绑扎楼梯钢筋,特别注意其锚固于楼梯暗梁内,且锚固长度达到设计要求; 9、楼板上弧墙内模板安装:按踏步尺寸及标高控制弧墙梯板上内模的安装,并用穿墙螺栓套PVC管将内弧墙模板加固; 10、弧墙内模板安装完毕,即安装楼梯踏步立面板,立面板间距应注意施工误差,整个楼梯弧长等分成踏步,并保证平台处标高为恒定值; 11、整体模板加固:内外弧墙模通过螺栓穿PVC管,结合φ50钢管加固,模板接头用弧形木方拼缝加固,整个模板内穿φ50钢管,将内外脚手架、弧墙模连成整体; 12、砼的浇筑:间隔5M设置砼浇筑点,砼按300浇高度进行浇筑,以免局部浇筑过高导致弧模模板变形弧形楼梯下面如何装修弧形楼梯制作方法。
施工方法来说其实很简单,其踏步底部一般都要采用竹胶板进行支模,上部现在工程上采用较多的一般是定型模板,按照楼梯的形式做成钢模定型,如果建筑上对于地坪的要求仅仅是水泥砂浆抹面的话,还可以做成清水楼梯,在楼梯的踏步角上安装钢筋防止踩踏破坏棱角弧形楼梯怎么做。

但是考虑受力的要求,一般楼梯都要做成上三步或下三步,这我想搞工程的人都应当清楚,但相对来说做成上三步比较容易弧形楼梯安装方法。
螺旋楼梯:这种楼梯优点是比较节约空间,而且盘旋而上给人的感觉较好,有较强的艺术性。螺旋梯在室内应用中,以旋转270度为最好弧形楼梯安装方法。旋转角度太小的话则上楼梯不存在什么问题,如下梯给人的感觉太陡,走路不是太方便,旋梯虽美但不是太实用,如果家中有老人和小孩的话走起来给人一种不太安全的感觉,这种楼梯多用于顶层阁楼小复式,大复式用的较少。 折梯:这种楼梯目前在室内应用较多其形式也较为多样,有90度折梯、360度的折梯,甚至有二折梯:进出口各有一个90度折形,这种楼梯的优点在于简洁易于造型弧形楼梯制作方法。缺点是和弧形梯一样,需要用较大的空间。 弧梯:是以一个典线连接楼上楼下,其美观大方,行走舒适,没有折梯的生硬,也没有旋梯的不安全感,是最为理想的楼梯,但一定要有足够的空间,才能达到最好的效果,是大复式与独立别墅的首选。
做圆弧楼梯木饰面方法1. 木栏杆上需要在焊接点及表面刷一层防锈漆打磨平整。
2. 钢结构需要将焊接点打磨平整,将缺口处使用原子灰填补平整。
基层处理完成后栏杆刷木纹漆步骤如下:
1.均匀滚涂/喷涂木纹底漆;如有漏底进行二次,三次涂刷;确保无漏底出现
2.待底漆干透后,滚涂/喷涂木纹面漆,并马上用木纹器拉出木纹效果。
3. 待木纹面漆干透后,涂上罩光漆做保护

最简单的做法如下;先在地面上找出园心点…以此在地面上画出弧或圆形楼梯内外弧形…量出起步点到终点的长度…内外弧的长度除以步级算出步级宽度…然后用木板锯成小块(步级宽×约40厘米长)…在地面上用约40厘长短方条把小板按楼梯的外围板连起来…连好后把外同围卦在楼梯的起步点和终点…注意内弧梯外围都要以此做好挂好…梯外围挂好后垂直度要和地面所画好的弧线重合…做好后就木板锯成大小头填充到梯里面去…(大小头木板锯法是这样的每个梯步锯一个…弧形梯一般梯面都是大小头的…每填充一大小头木板就边打顶…
好了,关于弧形钢楼梯施工方法问题,今天就讲到这里,希望以上的内容能对大家的问题有所帮助。